Fall 2021
Jonathan Ochshorn
Issued Sept. 15, 2021
Due Sept. 22, 2021 (upload PDF to canvas before class)
Sometimes, the best way to learn what's correct is to deliberately do something wrong. So, in that spirit, make a really bad proposal for a hypothetical renovation of the former third floor of Rand Hall (before it was converted into a library). Assume that the building is sprinklered and that the two egress stairs shown in the floor plan are legal and are to remain in place. Do not change anything in the plan areas shown in yellow and do not add any additional stairs. The required program elements are as follows:
1 large lecture room with chairs only, not fixed (see Table 1004.1.2), approximately 2000 square feet.
6 classrooms, approximately 600 square feet each.
Give every room access to the two exit stairs through corridors, but violate the common path of egress travel limits for at least one room, per Table 1006.2.1.
Create an illegal dead-end corridor (per Section 1020.4).
Give the large lecture room two exits, but violate the distance requirements between the exit doors as described in Section 1007.1.1. Note that the number of required exits in a space is governed by Section 1006.2.1.
Give all the rooms doors, but have at least one door swing [scroll down to 1010.1.2.1] open in the wrong direction, i.e., open into the room itself rather than in the direction of egress.
It's almost impossible to exceed the exit access travel distance in a building like this, as shown in Table 1017.2, so don't even try. However, find and mark the longest such distance in your plan, and indicate the number of feet. Remember that the exit access travel distance is measured from the most remote point in a room to the closest exit.
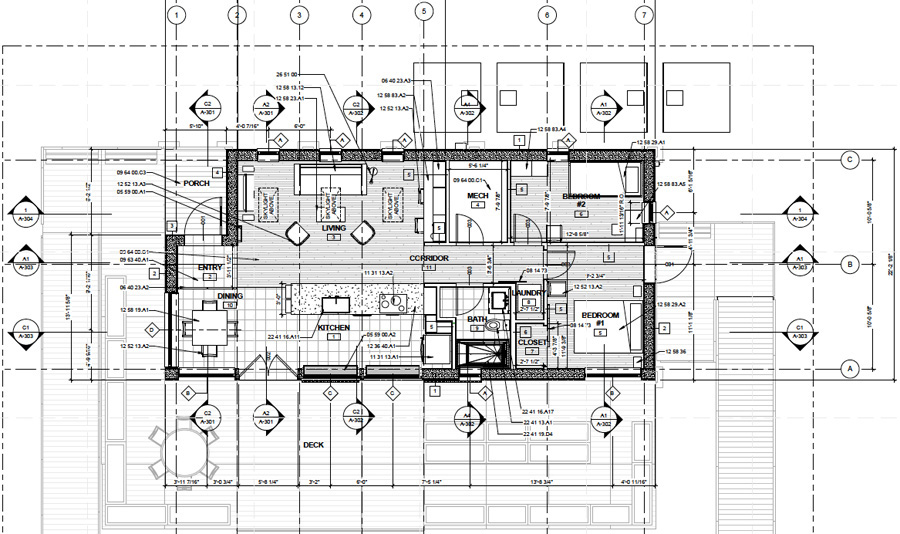
Draw the plan at a scale of 1/8" = 1'-0" (just about equivalent to 1:100 scale) and create (design) a scheme that appears to be logical and coherent — in other words, don't exaggerate the errors.
Make the room dimensions consistent with both the required floor areas indicated above, and with normal proportions for the intended activities.
Label all the rooms, including their occupant load (number of occupants; see Table 1004.5), and indicate/label all the errors (and maximum exit access travel distance) with "notations." Note that the "function of space" in Table 1004.5 is a description of what the space is used for, and is not the same as the occupancy classification. For example, a classroom within a Group B occupancy is still a "classroom," and not a "business area," for the computation of occupant load.
Make all corridors at least as wide as required (per Section 1020.2). Remember that if doors open into a corridor, the corridor width must be increased so that at least one-half of the required width is available when the door is open.
Include column grid lines ("bubbles"), dimensions, drawing title (Third floor plan), graphic scale (see image below taken from the National CAD Standard), as well as the notations described above.
Format the assignment on any size sheet listed in the NCS, with a border and title block following the guidelines in the National CAD Standard.
Try to find examples of "technical" floor plans in books, magazines, or online, including information on labeling column grids. But note that the AutoCad grid line recommendations are not consistent with those in the National CAD Standard (from Module 4 — Drafting Conventions; 4.2 Drawing Standards). The vertical grid line recommendations are the same, with numbers (1, 2, 3, etc.) going from left to right, but the horizontal grid line recommendations differ, with AutoCAD suggesting letters (A, B, C, etc.) going from the top to the bottom, and the NCS suggesting letters going from the bottom to the top. Follow the recommendations in the NCS.

Copyright
2020–2021 J. Ochshorn. All rights reserved. First posted: 3 September 2015 | last updated: 29 May 2021