Sectional perspective showing existing house with modifications and addition
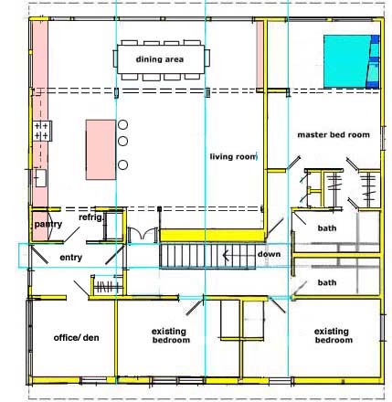
Proposed 1st-floor plan (original, left; alternate, right)
first posted: 22 March 2007; last updated: 31 December 2017
© 2007–2017 J. Ochshorn. All rights reserved. Republishing material on this web site, whether in print or on another web site, in whole or in part, is not permitted without advance permission of the author.